أطلق مصنعنا رسميًا منتجًا جديدًا فاخرًا - بيت الجبل . سواء كان منزلًا بسيطًا وبأسعار معقولة ، أو غرفة عائلية تتوق لقضاء وقت دافئ مع العائلة، أو حتى فيلا منتجع لقضاء العطلات مع تجربة فاخرة، فإن هذا المنزل الجبلي الجاهز يمكنه تلبية احتياجاتك المختلفة.

بالمقارنة مع المباني الخرسانية التقليدية غالبا ما تتطلب عدة أشهر أو حتى سنوات من البناء، في حين أن المنازل الجبلية الجاهزة تستخدم حكمة تصميمها المعياري لضغط وقت التثبيت إلى يوم أو يومين مذهلين. يتمتع فريق مكون من ستة عمال بالدقة والكفاءة مثل وحدات البناء، ويمكنهم تركيب منزل في يوم أو يومين. هذه السرعة لا تقلل من تكاليف العمالة فحسب، بل تسمح أيضًا للمستخدمين بوضعها قيد الاستخدام بسرعة.
وسائل نقل فعالة ومريحة
يمكن لحاوية واحدة بحجم 40'HQ تحميل أربع مجموعات كاملة من المنازل الجبلية، والمواد كلها مقسمة إلى قطع، مما يتغلب على القيود المختلفة لنقل مواد البناء التقليدية.

مجهزة بتصميم قاعدة فولاذية، يتم التخلص من أعمال الأساس المطلوبة للمباني التقليدية. يمكن وضع المنزل الجبلي بشكل خفيف على الأرض، وهذه الميزة لا تبسط عملية التثبيت فحسب، بل تقلل أيضًا من أعمال الحفر والأضرار التي تلحق بالأرض، مما يجسد المفهوم البيئي للتعايش المتناغم مع الطبيعة.

تكسر المنازل الجبلية الجاهزة الصورة النمطية السائدة لدى الناس والتي تعتبر المباني الجاهزة رتيبة. تتيح مجموعة متنوعة من خيارات الكسوة الداخلية والخارجية لكل منزل جبلي أن يتمتع بمظهر فريد، بدءًا من حبيبات الخشب الريفي إلى الملمس المعدني الحديث، ومن البسيط والمقيد إلى الفاخر والمكرر، لتلبية الاحتياجات الجمالية المختلفة.
ورقة الديكور الخارجي:

ورقة الديكور الداخلي:

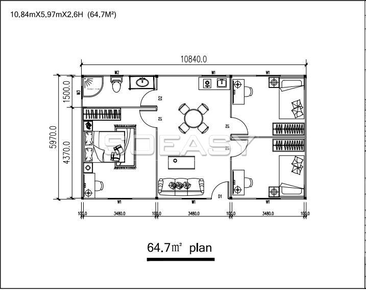
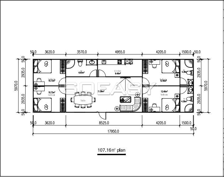
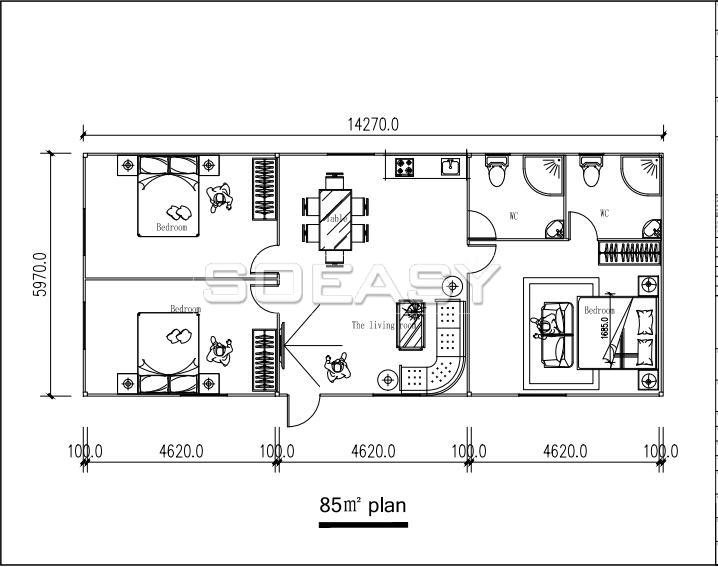
مساحة متنوعة للتكيف مع الاحتياجات المتنوعة
سواء كنت تبحث عن منزل عملي وبأسعار معقولة ، أو منزل عائلي يتطلب مساحة دافئة، أو حتى منزل عطلة فاخر يقدر الراحة، يمكن للمنازل الجبلية الجاهزة أن توفر الحل المناسب للمساحة. يمكن أن تلبي التصميمات ذات الأحجام وأنواع الشقق المختلفة احتياجات التخصيص.


مريحة ومضمونة
عزل حراري عالي الجودة، عزل جيد الأداء في ألواح الجدران يمكن أن يبقيك باردًا في الصيف الحار، ويحبس الدفء في الشتاء البارد، ويظل هادئًا ومريحًا على الرغم من صوت الرياح والمطر. وتضمن هذه الخصائص عدم تقييد الحياة الجبلية بالفصول أو البيئات.
من الإجازة المؤقتة إلى الإقامة طويلة الأمد، ومن الاقتصادية والعملية إلى المتعة الفاخرة، تعيد المنازل الجبلية الجاهزة تعريف إمكانيات العيش في الجبال بفضل قدرتها الممتازة على التكيف.
مرحبا بكم في اتصل بنا لمزيد من التفاصيل والخيارات المخصصة!
الهاتف (Wechat&WhatsApp) : +86 15625418620
بريد إلكتروني: export@soeasyhouse.com
موقع إلكتروني: http://www.foldingcontainerhouse.com
فيسبوك: https://www.facebook.com/profile.php?id=100037915700041
انستقرام: https://www.instagram.com/soeasyhouse/